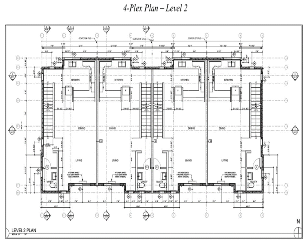
Unit Amenities
Each unit comes with air conditioning, stainless steel appliances, recessed LED lighting, quartz countertops, a washer and dryer, luxury vinyl tile flooring and an open floor plan.
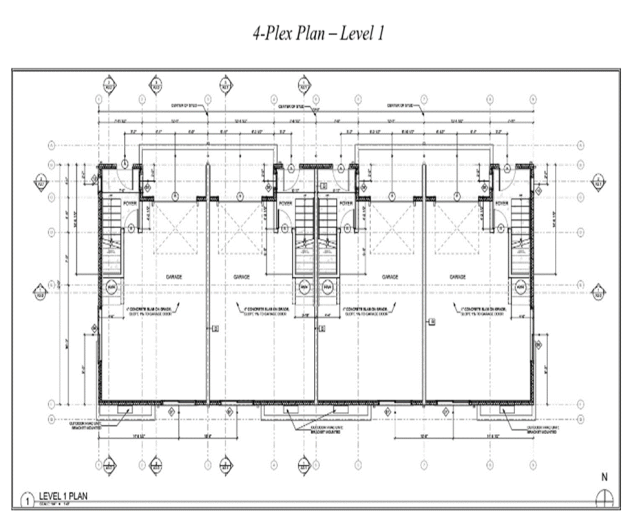
Building Mix
There are nine, three story fourplex buildings with approximately 5,924 rentable square feet and one, three story duplex building with approximately 2,986 rentable square feet. Gross building size for all ten buildings is approximately 74,868 square feet including garages.
Parking
Each unit comes with a 488 square foot single car attached garage and driveway parking. One assigned curbside parking space is located in front of each unit on the street. Additional offsite parking is also available.
Onsite Amenities
Coventry Villas has a dedicated picnic and barbeque area for residents.
Utilities
Tenants pay $50 per month for utilities and $30 per month for internet access through Xfinity. Units are separately metered for power and water. Curbside garbage pickup is billed direct to the tenants. Landlord is responsible for the sewer charge.
Neighborhood Demographics
The Parkland community borders the city limits of both Tacoma and Spanaway, Washington with a reported population of just under 40,000 in 2024. According to US Census data, the population is expected to grow at a .41% rate into 2028. The data also reports a housing affordability index of 56, indicating a large percentage of the local population is unable to afford a median priced home in the area. With an average Per Capita Income of $33,895 and a Median Household Income of $68,587, the majority of Parkland's residents are tenants with only 44% of it's residents carrying a mortgage.
Property Access
The property can be accessed from either end. Frontage on Pacific Avenue South at the west end of the property provides ingress to 146th St. Ct. S. and egress to northbound traffic. Access is also available from 146th Avenue at the East end of of the property to 1st Avenue South.
Zoning/Topography
TCTR – Town Center
Flat, rectangular shaped lot.
Tax Identification – Parcel Size
Parcel #9830000023 – 42,600 SQFT.
Parcel #9830000032 – 45,700 SQFT.
.png)
.png)
.png)